• Hood Depot International, Inc., 710 S. Powerline Rd Suite H • Deerfield Beach, FL 33442|
  • 954-570-4083|
  • 954-570-9865
  • Facebook
  • Linkedin
Toll Free: 1-800-322-8730

Speacialty series Vapor Condensate Hood for Non-Grease Applications VCH

hooddepot

PRODUCT SPECIFICATIONS

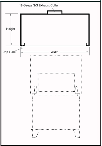
Furnish Hood Depot’s ventilator model VCH (ventilator without fire damper at the inlet slot) as shown on plans, with a depth of __ and an overall length of __ and to meet the following requirements:

GENERAL DESCRIPTION: Ventilator is a conventional filter-type hood with continuous array of baffle U.L. Classified filters along the entire ventilator length. Ventilators up to 12’ to include semi-concealed gutter. Ventilators over 12’ include two pitched gutters that slope to removable grease cups located at either extreme end. Ventilator shall include means for hanging or otherwise supporting.

CONSTRUCTION MATERIALS: The ventila-tor shall be 18 gauge all stainless steel con- struction. A number 4 finish shall be provided on all exposed surfaces.

LIGHT FIXTURES: Ventilator shall be equi- ped with 100 Watt Dome Incandescent or Recessed 150 Watt Incandescent or Recessed Fluorescent fixtures. Light fixtures shall be prewired to a single point of connec- tion at the factory.

APPROVALS: Ventilator to be U.L. Listed, list- ed by NSF, and in accordance with all recom- mendations of NFPA 96. The ventilator must meet all applicable codes.

APPLICATION

Ceiling mounted canopy style ventilator for use over medium duty non-grease equipment suitable for ceiling heights less than 8’6” by recessing into false ceiling.

DESCRIPTION

These VCH Series models are for medium velocity ceiling-mounted non-grease canopy ventilators which are U.L. Listed under the category of “Exhaust Hood Without Exhaust Damper.” Units are available in custom depths depending on cooking battery layout.

OPERATION

When properly operated and maintained, the unit requires no draining operation.

MAINTENANCE

At periodic intervals (such as the end of each cooking day) interior surfaces are to be cleaned and the mesh filter (if provided) is to be removed and cleaned.

AIR SUPPLY GUIDELINES

Appropriately conditioned supply air must be mechanically delivered to the space to replace exhausted air. Generally 80% is so delivered with the remaining 20% flowing naturally from adjoining areas.

EXHAUST/SUPPLY FAN UNITS

Exhaust fan(s) and supply fan(s) are available. See fan section of catalog or web site for design information. Fans must be designed for Hood Depot air volumes and static pres- sure drop for the entire system and must be in compliance with local codes.

  • Exhaust fan(s) should be properly sized and include UL762 listings
  • Discharge ducts should be vertical when possible and located away from air intakes
  • Supply fan(s) should be equipped with throw-away or cleanable type filters
  • Exhaust and supply fans require a magnetic starter switch with 120 Volt holding coil and should be electrically interlocked for simultaneous operation
  • Exhaust and supply fans should be operated through a listed kitchen hood control panel

FIRE PROTECTION

NFPA 96 and most other codes require a fire extinguishing system for protection of both the duct collar and plenum areas of ventilators and for the protection of cooking equip- ment such as fat fryers, griddles, ranges and broilers which may be source of ignition of grease. Check with local fire authorities for exact requirements.

OPTIONAL EQUIPMENT

Consult Hood Depot regarding custom services addressing:

  • Exhaust Fans, Supply Fans and rooftop units
  • Fire protection systems
  • Heat Recovery Units
  • Reduced Throat (low air volume) Ventilators
  • Utility Distribution Systems (UDS)
  • Air Purification Systems
  • Listed Control Panels
  • Demand Ventilation
  • ASTM 2519 High Efficiency Filters
  • HEPA intake units
  • Top Enclosure Skirts
  • S/S Filters
  • Wall Panels
  • 3” Left or Right Standoffs
  • Fluorescent Lights
hooddepot

Engineering Data

LIGHT LOAD..............Steamers, ovens, kettles (under 20 Gals.), open burner ranges, griddles, electric fryers MEDIUM LOAD..........Pizza ovens, convection ovens, kettles (under 60 Gals.), steamers

Electrical

An optional Hood Depot Control Panel can be provided for each exhaust fan. A contactor or meter starter will be provided for each fan. See section “Control Panels” in our catalog or visit our web site for more information.

Static Pressure

Static pressure drops across ventilator: Model SWLV.......................0.75 W.G. at the duct collarr

Canopy Hanging Weights

Hood Depth 42” 48” 54” 60” (Other depths avail.) Wgt. per lin. ft. (LBS) 50 55 65 70

Airflow Data

U.L. Listed for 100CFM / L.F. Contact factory for design criteria for specific appliance line layout designed for more CFM / L.F. (if equipment includes ranges fryers or griddles).

hooddepot hooddepot

Sizes Available

Canopies available in widths of 40”, 48”, 54” and 60”. Height can be 24” or 30” depending on ceiling height. Custom widths and heights available; contact factory.

Lengths Available

Hood lengths available from 4’0” to 16’0” in 6” increments. For lengths 6’6” to 12’0” the maximum offset from centerline and/or make-up air openings to end of hood shall not exceed 6”0”. Lengths from 12’0” to 16’0” shall incorporate two exhaust ducts, each not to exceed 6’0” on center. Filters and lights are added in proportion to length.